티스토리 뷰
영덕영해 공공실버주택(고령자복지) 입주자 추가모집 공고에 대해서 알아보겠습니다.
목차
영덕영해 공공실버주택(고령자복지) 입주자 추가모집

‘19.9.27일 이후 입주자모집 공고 신청 시 동일유형의 임대주택 예비 입주자로 중복선정이 되지 않으며, 장기임대주택(국민임대, 영구임대, 행복주택) 입주 시 모든 대기자 명부에서 제외 처리되니 신청 시 유의 하시기 바랍니다. 세부적인 사항은 아래 공고문 [3. 공급일정 및 세부절차] 및 [8. 당첨자발표 및 계약안 내]를 참조하시기 바랍니다.
▪ 금회 모집하는 주택의 입주자 모집공고일은 2024.02.14(수)이며, 이는 입주자격(무주택세대구성원) 및 배점 등의 판단 기준일이 되며, 제출서류는 모집공고일 이후 발급분이어야 합니다.
▪ 고령자복지주택은 만65세 이상인 사람(1959년 2월 14일(포함) 이전 출생자)으로, 입주자격 해당자만 신청가 능 합니다. (4쪽 4.신청자격 확인)
▪ 본 모집공고문의 대상 주택에 대하여 1세대 1주택 신청을 원칙으로 하며, 중복 신청하는 경우 전부 무효처리 합니다.
▪ 신청접수는 인터넷 신청이 불가능하고 지정된 일자에 현장 및 우편접수만 가능하오니 유의하시기 바랍니다.
공급정보
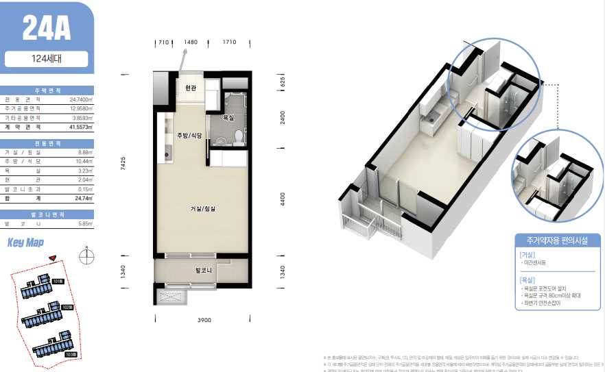
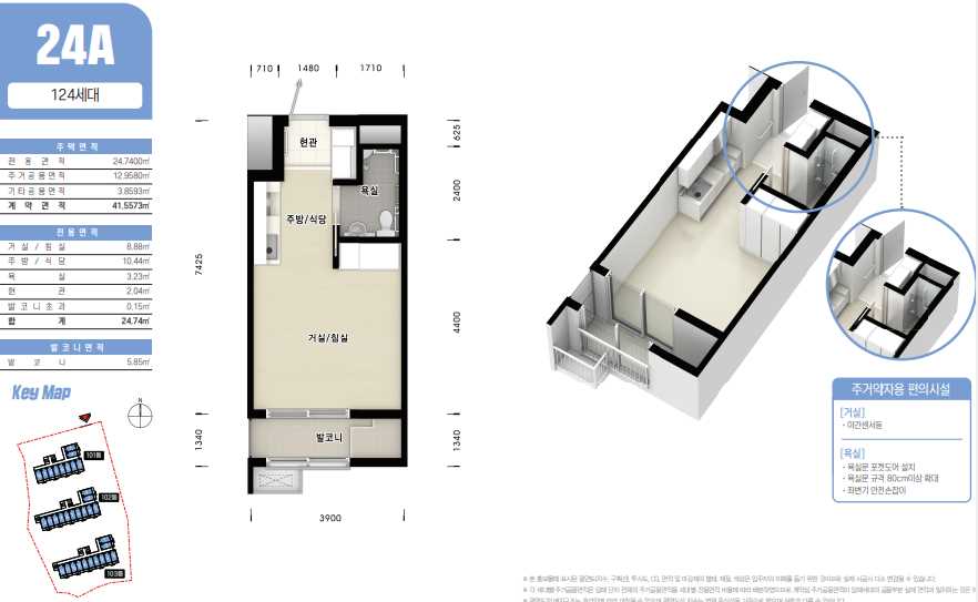
- 소재지 : 경상북도 영덕군 영해면 동해대로 6560(영덕영해 공공실버아파트)
- 전용면적(㎡) : 24.74~24.74
- 총 세대수 : 124
- 난방방식 : 개별난방
- 입주예정월 : 2021.12
공급일정
- 접수기간 : 2024.02.28 ~ 2024.03.06
- 당첨자발표일 : 2024.05.31
- 계약기간 : 2024.06.13 ~ 2024.06.14
단지정보

영덕영해 공공실버주택 입주자 추가모집 공고 다운로드
임대주택 주요 정보 알아보기
청약점수 계산
입주자 모집공고
- LH청약플러스 홈페이지에서 확인
- SH서울주택도시공사 홈페이지에서 확인
- 청약 > 임대주택 > 공고문 선택
임대문의
- 전국 대표전화 1600-1004
- 운영시간 평일 09:00~18:00 (점심시간 12:00~13:00)
- 토,일 공휴일 휴무
인터넷 신청방법
- 공인 인증서 준비
- LH/SH 청약시스템 접속
- 인터넷 신청
- 신청 완료
예비입주자 당첨 명단 조회
예비입주자 당첨 명단 조회는 LH청약 홈페이지와 ARS(1661-7700)을 통해 당첨 발표일로부터 30일간 확인할 수 있습니다.
청약 > 청약결과 확인 > 당첨/낙찰 결과조회 에서 로그인 후 확인이 가능합니다.
당첨 사실을 확인하지 못하여 계약 체결을 못한 경우 책임은 신청자 본인에게 있습니다.
예비입주자 대기현황 조회
임대주택에 경우 바로 당첨 후 입주 하는 것이 아니라, 예비입주자 순번을 부여받고 순차적으로 공실이 나면 입주를 하게 됩니다.
당첨되기전에, 내가 청약한 주택에 입주 대기자수를 확인해보고, 내가 언제쯤 입주할지를 가늠해볼 수 있습니다.
예비입주자 대기현황(마이홈)에서 해당 단지를 검색하면, 입주 대기자수를 확인이 가능합니다.

주택 관련 정보 더보기
'최신모집공고' 카테고리의 다른 글
| 군산미룡1 국민임대주택 예비입주자 모집 공고 (0) | 2024.02.17 |
|---|---|
| 대구가람1단지 50년 공공임대 예비입주자 모집 (0) | 2024.02.17 |
| 김천부곡2 영구임대주택 예비입주자 모집 공고 (0) | 2024.02.17 |
| 익산한스빌 국민임대주택 예비입주자 완화 모집공고 (0) | 2024.02.17 |
| 완주봉동 2단지 국민임대주택 예비입주자 모집공고 (0) | 2024.02.17 |
