티스토리 뷰
인천광역시 부평구 임대주택 래미안부평 공공임대 모집공고 및 청약정보에 대해서 알아봅니다.
래미안부평는 인천광역시 부평구에 위치하고 있습니다.
목차
래미안부평 공공임대

임대주택 신청자격은 입주자 모집공고일 기준, 무주택 세대 구성원으로 소득 및 자산 보유기준이 충족되면 신청이 가능합니다.
공공임대 주택은 임대기간 5,10,50년, 전용 85 ㎡이하(50년 임대는 50 ㎡이하), 보증금+임대료는 시중 전세 시세의 90% 수준으로 공급하는 임대주택입니다.
자세한 부분은 홈페이지 모집공고 상세페이지에서 확인하시거나 전화 문의를 하시면 됩니다.
신청 시 공고 내용을 반드시 숙지하고 신청자격, 소득, 자산, 가점항목 등 사전에 본인이 직접 해당 서류를 작성 후 직접신청해야합니다.
계약은 공가 발생 시 당첨 순번으로 계약하게 됩니다. 예비입주자로 선정되어도 실제 주택 입주에는 많은 기간이 소요될 수 있습니다.
아파트 단지 정보
- 지역 인천광역시 부평구
- 소재지 인천광역시 부평구 길주남로10번길 11
- 건설세대수 236 (총 1,145세대)
- 준공일 2014년 9월
- 난방방식 지역난방
- 주차수 1,355 (세대당 1.18대)
- 승강기 전체동 설치
공급정보

임대보증금 및 월 임대료는 입주자 모집공고일 기준이며, 보증금 최대 전환 시 변동될 수 있습니다.
공공임대주택는 분양전환이 되는 아파트로 2년마다 재계약을 하면 최대 10년간 거주가 가능하며, 이후 분양전환이 됩니다.
선정방법
당첨자(예비순번)은 순위 순으로 선정하며, 1순위 내 경쟁이 있을 경우 아래의 「1순위 내 경쟁 시 선정순차」를 따릅니다. 1순위 내 동일 순차 경쟁이 있는 경우 추첨의 방법으로 당첨자를 선정합니다.
1순위 내 경쟁 시 선정순차
- 가. 3년 이상의 기간 무주택세대구성원으로서 저축총액(주택청약종합저축 및 청약저축은 매월 10만원까지만 인정)이 많은 분
- 나. 저축총액(주택청약종합저축 및 청약저축은 매월 10만원까지만 인정)이 많은 분
래미안부평 공공임대 모집공고 보기
단지 배치도

동호 배치도
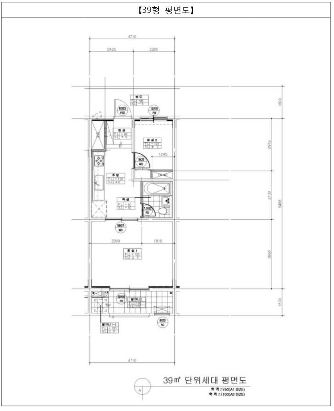
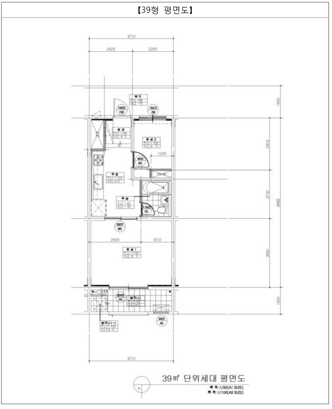
주택 평면도

해당기관 공고페이지 바로보기
주택평면도는 마이홈(https://www.myhome.go.kr/)에서
공공주택찾기(기존 임대주택 찾기) > 지역 선택 > 공공임대 > 아파트 선택 후 검색하기 > 단지명 클릭 으로 확인이 가능합니다.
한국 토지주택공사LH, 지자체, 지방공사에서 무주택 저소득 서민들을 위해 저렴한 비용으로 주거안정을 누릴 수 있도록 소득 계층별 다양한 임대주택을 공급하고 있습니다.
임대주택을 잘 알아보시며, 적은 비용으로 주거안정과 더불어 행복한 삶을 영위할 수 있으니 알아보시기 바랍니다.
임대주택 주요 정보 알아보기
주택 관련 정보 더보기
- 주거급여 자격조건 신청방법 알아보기
- 임대주택 종류 총정리 (국민,공공,행복,장기,영구)
- 국민임대 주택 정보 총정리
- 영구임대 주택 정보 총정리
- 통합공공임대 주택 정보 총정리
- 행복주택 정보 총정리
- 장기전세 정보 총정리
- 공공임대 정보 총정리
- 청년안심주택 정보 총정리
청약점수 계산
임대문의
- 전국 대표전화 1600-1004
- 운영시간 평일 09:00~18:00 (점심시간 12:00~13:00)
- 토,일 공휴일 휴무
인터넷 신청방법
- 공인 인증서 준비
- LH/GH 청약시스템 접속
- 인터넷 신청
- 신청 완료
청약 신청 제출 서류
예비입주자 당첨 명단 조회
예비입주자 당첨 명단 조회는 LH청약 홈페이지와 ARS(1661-7700)을 통해 당첨 발표일로부터 30일간 확인할 수 있습니다.
청약 > 청약결과 확인 > 당첨/낙찰 결과조회 에서 로그인 후 확인이 가능합니다.
당첨 사실을 확인하지 못하여 계약 체결을 못한 경우 책임은 신청자 본인에게 있습니다.
예비입주자 대기현황 조회
임대주택에 경우 바로 당첨 후 입주 하는 것이 아니라, 예비입주자 순번을 부여받고 순차적으로 공실이 나면 입주를 하게 됩니다.
당첨되기전에, 내가 청약한 주택에 입주 대기자수를 확인해보고, 내가 언제쯤 입주할지를 가늠해볼 수 있습니다.
예비입주자 대기현황(마이홈)에서 해당 단지를 검색하면, 입주 대기자수를 확인이 가능합니다.
'인천' 카테고리의 다른 글
| 부평산곡푸르지오 공공임대 모집공고 및 청약정보 (인천 부평구 임대주택) (0) | 2024.05.08 |
|---|---|
| 갈산삼성홈타운 공공임대 모집공고 및 청약정보 (인천 부평구 임대주택) (0) | 2024.05.08 |
| 삼산주공1단지증축 영구임대 모집공고 및 청약정보 (인천 부평구 임대주택) (0) | 2024.05.08 |
| 부평우민늘푸른 행복주택 모집공고 및 청약정보 (인천 부평구 임대주택) (0) | 2024.05.08 |
| 쌍용더플래티넘부평 민간임대 모집공고 (인천 부평구 임대주택) (0) | 2024.05.07 |
