티스토리 뷰
유니버설디자인하우스 민간임대 모집공고 및 청약정보에 대해서 알아봅니다.
유니버설디자인하우스는 서울 노원구 수락산역 근처에 위치하고 있습니다.
목차
유니버설디자인하우스 민간임대

아파트 단지 정보
- 지역 서울 노원구
- 소재지 서울 노원구 동일로 242길 103
- 공급구분 민간임대
- 건설세대수 33
- 준공일 2023년 9월
- 난방방식 개별난방
- 주차수 24 (세대당 0.72대)
- 승강기 전체동 설치
공급정보


임대보증금 및 월 임대료는 입주자 모집공고일 기준이며, 보증금 최대 전환 시 변동될 수 있습니다.
유니버설디자인하우스 모집공고 보기
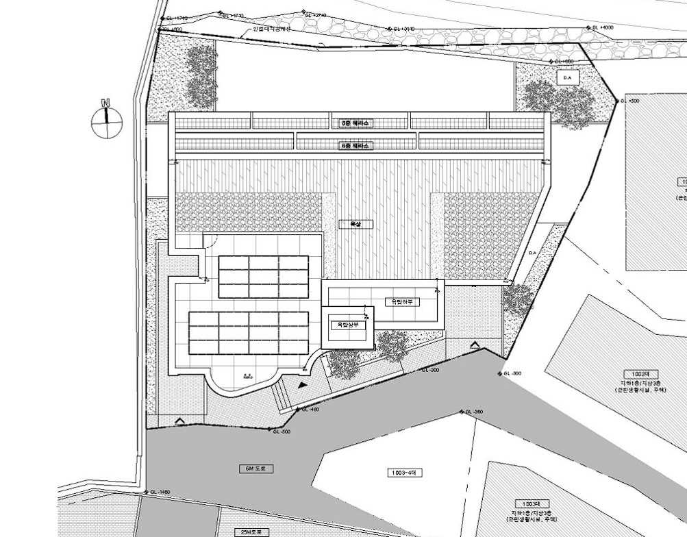
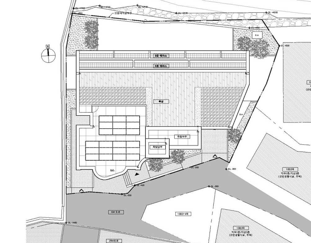
단지배치도

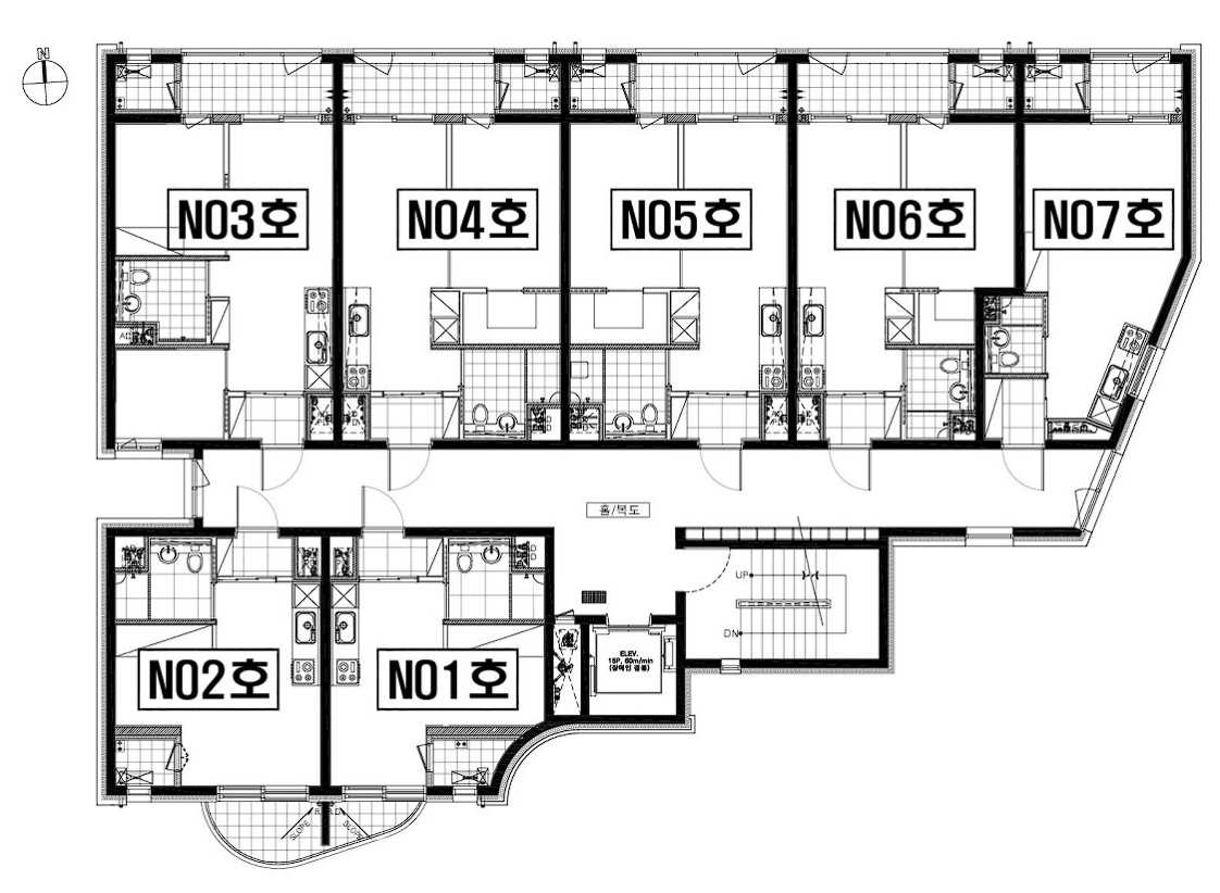
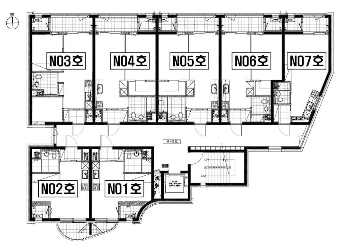
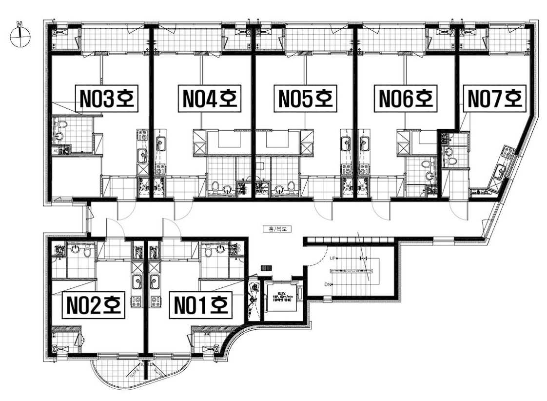
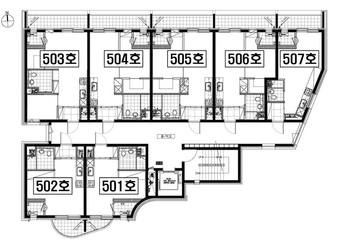
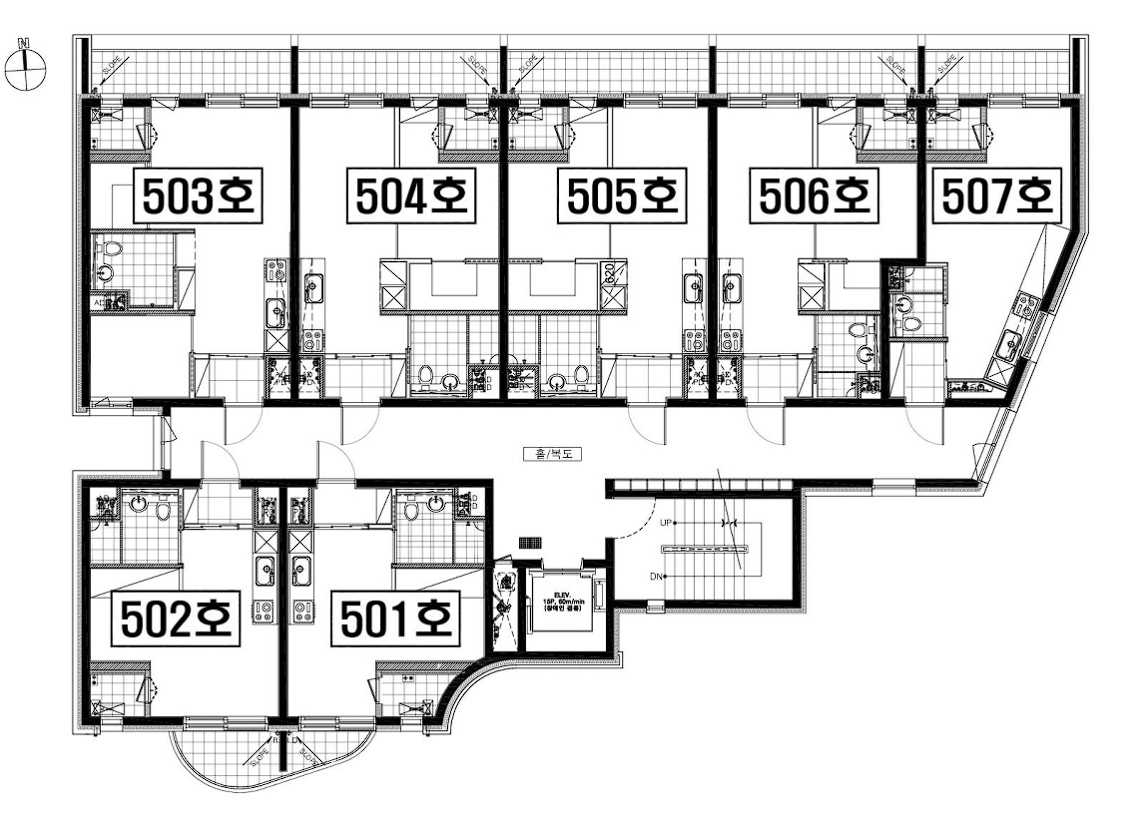
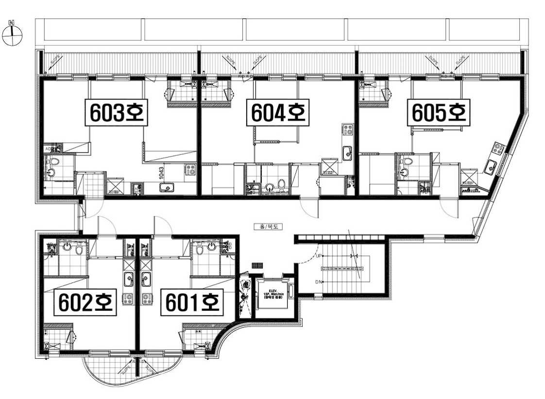
동호수배치도



주택 평면도





주택평면도는 마이홈(https://www.myhome.go.kr/)에서
공공주택찾기(기존 임대주택 찾기) > 지역 선택 > 공공임대 > 아파트 선택 후 검색하기 > 단지명 클릭 으로 확인이 가능합니다.
한국 토지주택공사LH, 지자체, 지방공사에서 무주택 저소득 서민들을 위해 저렴한 비용으로 주거안정을 누릴 수 있도록 소득 계층별 다양한 임대주택을 공급하고 있습니다.
임대주택을 잘 알아보시며, 적은 비용으로 주거안정과 더불어 행복한 삶을 영위할 수 있으니 알아보시기 바랍니다.
임대주택 주요 정보 알아보기
입주자 모집공고
- LH청약플러스 홈페이지에서 확인
- SH서울주택도시공사 홈페이지에서 확인
- 청약 > 임대주택 > 공고문 선택
임대문의
- 전국 대표전화 1600-1004
- 운영시간 평일 09:00~18:00 (점심시간 12:00~13:00)
- 토,일 공휴일 휴무
인터넷 신청방법
- 공인 인증서 준비
- LH 청약시스템 접속
- 인터넷 신청
- 신청 완료
예비입주자 당첨 명단 조회
예비입주자 당첨 명단 조회는 LH청약 홈페이지와 ARS(1661-7700)을 통해 당첨 발표일로부터 30일간 확인할 수 있습니다.
청약 > 청약결과 확인 > 당첨/낙찰 결과조회 에서 로그인 후 확인이 가능합니다.
당첨 사실을 확인하지 못하여 계약 체결을 못한 경우 책임은 신청자 본인에게 있습니다.
예비입주자 대기현황 조회
임대주택에 경우 바로 당첨 후 입주 하는 것이 아니라, 예비입주자 순번을 부여받고 순차적으로 공실이 나면 입주를 하게 됩니다.
당첨되기전에, 내가 청약한 주택에 입주 대기자수를 확인해보고, 내가 언제쯤 입주할지를 가늠해볼 수 있습니다.
예비입주자 대기현황(마이홈)에서 해당 단지를 검색하면, 입주 대기자수를 확인이 가능합니다.

주택 관련 정보 더보기
'서울' 카테고리의 다른 글
| 와이엔타워 청년안심주택 모집공고(16,30,35형) (0) | 2024.02.02 |
|---|---|
| 노원롯데캐슬시그니처 공공임대 모집공고 및 청약정보 (0) | 2024.02.02 |
| 서울 강북구 미아에스에이치빌 공공임대 모집공고(30형) (0) | 2024.02.02 |
| 래미안트리베라2차 공공임대 모집공고(38,42형) (0) | 2024.02.02 |
| 래미안트리베라1차 공공임대 모집공고(39,44형) (0) | 2024.02.02 |
