티스토리 뷰
화성 임대주택 동탄능동마을휴먼시아7-2단지 국민임대 모집공고 및 청약정보에 대해서 알아봅니다.
동탄능동마을휴먼시아7-2단지는 경기도 화성시에 위치하고 있습니다.
목차
동탄능동마을휴먼시아7-2단지 국민임대

임대주택 신청자격은 입주자 모집공고일 기준, 무주택 세대 구성원으로 소득 및 자산 보유기준이 충족되면 신청이 가능합니다.
국민임대 주택은 임대기간 30년, 전용 60 ㎡이하, 보증금+임대료를 시중시세에 60~80%수준으로 공급하는 임대주택입니다.
자세한 부분은 GH 주택청약센터 홈페이지에서 자세한 모집공고를 확인하시거나 전화 문의(1588-0466) 하시면 됩니다.
신청 시 공고 내용을 반드시 숙지하고 신청자격, 소득, 자산, 가점항목 등 사전에 본인이 직접 해당 서류를 작성 후 직접신청해야합니다.
계약은 공가 발생 시 당첨 순번으로 계약하게 됩니다. 예비입주자로 선정되어도 실제 주택 입주에는 많은 기간이 소요될 수 있습니다.
아파트 단지 정보
- 지역 경기도 화성시
- 소재지 경기도 화성시 동탄지성로 150-12
- 건설세대수 963
- 준공일 2008년 6월
- 난방방식 지역난방
- 주차수 820 (세대당 0.85대)
- 승강기 전체동 설치

공급정보

임대보증금 및 월 임대료는 입주자 모집공고일 기준이며, 보증금 최대 전환 시 변동될 수 있습니다.
국민임대주택는 분양전환이 되지 않는 아파트로써, 입주민에게 주택을 분양하지 않고 첫 계약 후 2년마다 재계약을 하는 방식으로 최대 30년까지 거주하게 하는 주택입니다.
선정방법
전용 면적 50㎡미만 주택 해당
- 1순위 : 해당 모집공고 시,도에 거주하는 자
- 2순위 : 제 1순위 및 제 2순위에 해당되지 아니하는 자
선정순서 : 순위 > 배점 > 추첨
*청약저축 납입횟수는 통장 납입 횟수가 아닌 청약 순위 확인서로 보게 됩니다. 임대주택에 당첨이 되더라도 다른 분양주택 또는 임대주택을 청약하는데 재사용 가능하며, 당첨되었다고 해서 다른 아파트에 청약을 하지 못하는게 아니니 걱정할 필요 없습니다.
동탄능동마을휴먼시아7-2단지 국민임대 모집공고 보기
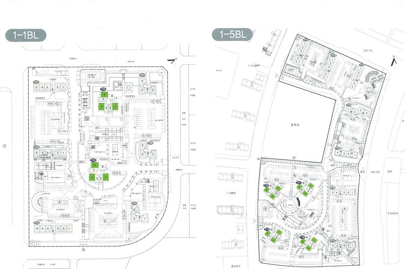
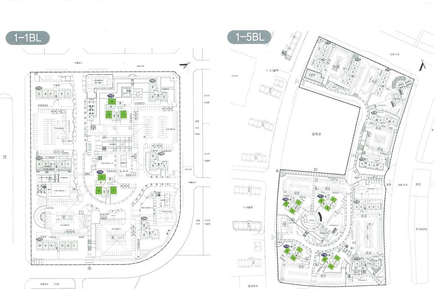
단지 배치도

주택 평면도
39

47

51

59

해당기관 공고페이지 바로보기
주택평면도는 마이홈(https://www.myhome.go.kr/)에서
공공주택찾기(기존 임대주택 찾기) > 지역 선택 > 공공임대 > 아파트 선택 후 검색하기 > 단지명 클릭 으로 확인이 가능합니다.
한국 토지주택공사LH, 지자체, 지방공사에서 무주택 저소득 서민들을 위해 저렴한 비용으로 주거안정을 누릴 수 있도록 소득 계층별 다양한 임대주택을 공급하고 있습니다.
임대주택을 잘 알아보시며, 적은 비용으로 주거안정과 더불어 행복한 삶을 영위할 수 있으니 알아보시기 바랍니다.
임대주택 주요 정보 알아보기
입주자 모집공고
- LH청약플러스 홈페이지에서 확인
- GH경기주택도시공사 홈페이지에서 확인
- 청약 > 임대주택 > 공고문 선택
임대문의
- 전국 대표전화 1600-1004
- 운영시간 평일 09:00~18:00 (점심시간 12:00~13:00)
- 토,일 공휴일 휴무
인터넷 신청방법
- 공인 인증서 준비
- LH/SH 청약시스템 접속
- 인터넷 신청
- 신청 완료
예비입주자 당첨 명단 조회
예비입주자 당첨 명단 조회는 GH청약 홈페이지와 ARS(1661-7700)을 통해 당첨 발표일로부터 30일간 확인할 수 있습니다.
청약 > 청약결과 확인 > 당첨/낙찰 결과조회 에서 로그인 후 확인이 가능합니다.
당첨 사실을 확인하지 못하여 계약 체결을 못한 경우 책임은 신청자 본인에게 있습니다.
예비입주자 대기현황 조회
임대주택에 경우 바로 당첨 후 입주 하는 것이 아니라, 예비입주자 순번을 부여받고 순차적으로 공실이 나면 입주를 하게 됩니다.
당첨되기전에, 내가 청약한 주택에 입주 대기자수를 확인해보고, 내가 언제쯤 입주할지를 가늠해볼 수 있습니다.
예비입주자 대기현황(마이홈)에서 해당 단지를 검색하면, 입주 대기자수를 확인이 가능합니다.

주택 관련 정보 더보기
'경기' 카테고리의 다른 글
| 동탄능동마을휴먼시아7-3단지 국민임대 모집공고 (화성 임대주택) (0) | 2024.03.09 |
|---|---|
| 동탄능동마을휴먼시아7-1단지 국민임대 모집공고 (화성 임대주택) (0) | 2024.03.09 |
| 향남시범복사꽃마을휴먼시아7단지 국민임대 모집공고 (화성 임대주택) (0) | 2024.03.09 |
| 동탄새강마을휴먼시아5-2단지 국민임대 모집공고 (화성 임대주택) (0) | 2024.03.09 |
| 향남시범한우물마을휴먼시아6단지 국민임대 모집공고 (화성 임대주택) (0) | 2024.03.09 |
