티스토리 뷰
제주화북지구주공3단지 공공임대 50년 정보(49형)에 대해서 알아보겠습니다.
제주화북지구주공3단지는 제주시 근처 화북삼화지구에 위치하고 있습니다.
목차
제주화북지구주공3단지 공공임대 50년 정보(49형)

제주화북지구 주공3단지 아파트 신청자격은 입주자 모집공고일 기준, 무주택 세대 구성원으로 소득 및 자산 보유기준이 충족되면 신청이 가능합니다.
이 글에서 부족한 자세한 부분은 LH 제주지역 본부 ( 1600-1004) 에 전화로 문의하시기 바랍니다.
신청 시 공고 내용을 반드시 숙지하고 신청자격, 소득, 자산, 가점항목 등 사전에 본인이 직접 해당 서류를 작성 후 직접신청해야합니다.
계약은 공가 발생 시 당첨 순번으로 계약하게 됩니다. 예비입주자로 선정되어도 실제 아파트 입주에는 많은 기간이 소요될 수 있습니다.
공공임대 주택으로 최대 50년까지 주거가 가능한 임대아파트입니다.
제주화북지구 주공3단지 모집공고 보기
아파트 단지 정보
- 지역 제주 제주시
- 소재지 제주특별자치도 제주시 동화로1길 35
- 공급구분 공공임대(50년)
- 건설세대수 590
- 준공일 1997년 12월
- 난방방식 개별가스난방
- 주차수 373 (세대당 0.63대)
- 승강기 전체동 설치
공급정보

임대보증금 및 월 임대료는 입주자 모집공고일 기준이며, 보증금 최대 전환 시 변동될 수 있습니다.
국민임대아파트는 분양전환이 되지 않는 아파트로써, 입주민에게 주택을 분양하지 않고 첫 계약 후 2년마다 재계약을 하는 방식으로 최대 30년까지 거주하게 하는 주택입니다.
선정방법
현재 주택건설지역(제주특별자치도)에 거주하는 무주택세대구성원 전원이 무주택자이며 아래의 기준에 해당되는 공급신청자격자

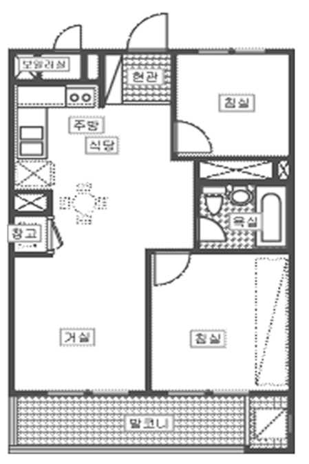
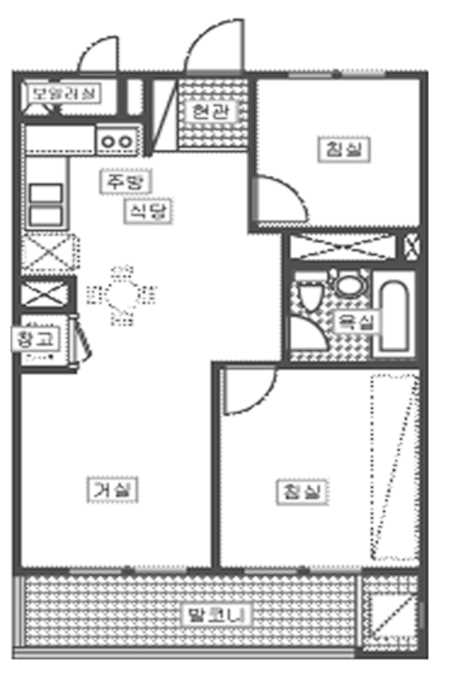
제주화북지구 주공3단지 평면도
49A

49B

주택평면도는 마이홈(https://www.myhome.go.kr/)에서
공공주택찾기(기존 임대주택 찾기) > 지역 선택 > 국민임대 > 아파트 선택 후 검색하기 > 단지명 클릭 으로 확인이 가능합니다.
한국 토지주택공사LH, 지자체, 지방공사에서 무주택 저소득 서민들을 위해 저렴한 비용으로 주거안정을 누릴 수 있도록 소득 계층별 다양한 임대주택을 공급하고 있습니다.
임대주택을 잘 알아보시며, 적은 비용으로 주거안정과 더불어 행복한 삶을 영위할 수 있으니 알아보시기 바랍니다.
임대주택 정보 알아보기
입주자 모집공고
- 한국토지주택공사 홈페이지에서 확인
- 청약센터 > 청약공고 > 임대주택 선택
임대문의
전국 대표전화 1600-1004
인터넷 신청방법
- 공인 인증서 준비
- LH 인터넷청약시스템 접속
- 인터넷 신청
- 신청 완료
예비입주자순위 조회
예비입주자 당첨 명단 조회는 공사 홈페이지와 ARS(1661-7700)을 통해 당첨 발표일로부터 30일간 확인할 수 있습니다. 당첨 사실을 확인하지 못하여 계약 체결을 못한 경우 책임은 신청자 본인에게 있습니다.
'제주' 카테고리의 다른 글
| 제주 제주시 제주봉개LH 행복주택 임대주택 모집공고 (16형, 26형, 36형) (0) | 2023.09.16 |
|---|---|
| 제주 서귀포혁신도시 LH1단지 공공임대 10년 (59A형) (0) | 2023.09.15 |
| 서귀포동홍6 국민임대 주택 정보 (39형, 46형, 47형, 51형) (0) | 2023.09.15 |
| 북제주고성 국민임대 주택 총정리(39형, 51형) (0) | 2023.09.14 |
| 서귀포남원 국민임대 주택 총정리(26형, 36형, 46형) (0) | 2023.09.14 |
