티스토리 뷰
정든마을1단지 국민임대주택 (36형, 39형, 46형)에 대해서 알아봅니다.
정든마을1단지 국민임대 주택은 제주시 제주공항 근처에 위치하고 있습니다.
목차
정든마을1단지 국민임대주택 (36형, 39형, 46형)

정든마을1단지 국민임대 공공임대아파트 신청자격은 입주자 모집공고일 기준, 무주택 세대 구성원으로 소득 및 자산 보유기준이 충족되면 신청이 가능합니다.
이 글에서 부족한 자세한 부분은 LH 제주지역 본부 ( 1600-1004) 에 전화로 문의하시기 바랍니다.
신청 시 공고 내용을 반드시 숙지하고 신청자격, 소득, 자산, 가점항목 등 사전에 본인이 직접 해당 서류를 작성 후 직접신청해야합니다.
계약은 공가 발생 시 당첨 순번으로 계약하게 됩니다. 예비입주자로 선정되어도 실제 아파트 입주에는 많은 기간이 소요될 수 있습니다.
정든마을1단지 국민임대 모집공고 보기
아파트 단지 정보
- 지역 제주 제주시
- 소재지 제주특별자치도 제주시 정존11길 54
- 공급구분 국민임대
- 건설세대수 620
- 준공일 2004년 12월
- 난방방식 개별가스난방
- 주차수 498 (세대당 0.80대)
- 승강기 전체동 설치
공급정보

임대보증금 및 월 임대료는 입주자 모집공고일 기준이며, 보증금 최대 전환 시 변동될 수 있습니다.
국민임대아파트는 분양전환이 되지 않는 아파트로써, 입주민에게 주택을 분양하지 않고 첫 계약 후 2년마다 재계약을 하는 방식으로 최대 30년까지 거주하게 하는 주택입니다.
선정방법
전용 면적 50㎡미만 주택 해당
- 1순위 : 제주특별자치도에 거주하는 자
- 2순위 : 제 1순위 및 제 2순위에 해당되지 아니하는 자
선정순서 : 순위 > 배점 > 추첨
*청약저축 납입횟수는 통장 납입 횟수가 아닌 청약 순위 확인서로 보게 됩니다. 임대주택에 당첨이 되더라도 다른 분양주택 또는 임대주택을 청약하는데 재사용 가능하며, 당첨되었다고 해서 다른 아파트에 청약을 하지 못하는게 아니니 걱정할 필요 없습니다.
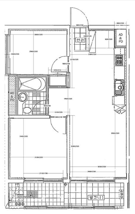
정든마을1단지 국민임대 평면도
36형

39형

46형

주택평면도는 마이홈(https://www.myhome.go.kr/)에서
공공주택찾기(기존 임대주택 찾기) > 지역 선택 > 국민임대 > 아파트 선택 후 검색하기 > 단지명 클릭 으로 확인이 가능합니다.
한국 토지주택공사LH, 지자체, 지방공사에서 무주택 저소득 서민들을 위해 저렴한 비용으로 주거안정을 누릴 수 있도록 소득 계층별 다양한 임대주택을 공급하고 있습니다.
임대주택을 잘 알아보시며, 적은 비용으로 주거안정과 더불어 행복한 삶을 영위할 수 있으니 알아보시기 바랍니다.
임대주택 정보 알아보기
입주자 모집공고
- 한국토지주택공사 홈페이지에서 확인
- 청약센터 > 청약공고 > 임대주택 선택
임대문의
전국 대표전화 1600-1004
인터넷 신청방법
- 공인 인증서 준비
- LH 인터넷청약시스템 접속
- 인터넷 신청
- 신청 완료
예비입주자순위 조회
예비입주자 당첨 명단 조회는 공사 홈페이지와 ARS(1661-7700)을 통해 당첨 발표일로부터 30일간 확인할 수 있습니다. 당첨 사실을 확인하지 못하여 계약 체결을 못한 경우 책임은 신청자 본인에게 있습니다.
'제주' 카테고리의 다른 글
| 옹포주암 국민임대주택 (45형) (0) | 2023.10.05 |
|---|---|
| 조천주암썬빌리지 국민임대주택 (33형, 47형) (0) | 2023.10.03 |
| 주공3단지 국민임대주택 (51형, 59형) (0) | 2023.10.03 |
| 삼화휴먼시아1단지 국민임대주택 (33형, 39형, 46형, 51형) (0) | 2023.10.02 |
| 남원에덴아파트 국민임대주택 (40형, 60형) (0) | 2023.10.02 |
