티스토리 뷰
전라남도 광양시 임대주택 창덕에버빌2차 국민임대 모집공고 및 청약정보에 대해서 알아봅니다.
광양시에 위치한 창덕에버빌 2차 국민임대주택은 전라남도 광양시 광양읍 용강1길 22번지(지번: 용강리 893)에 자리한 국민임대아파트입니다. 이 단지는 총 262세대 규모로 구성되어 있으며, 2010년 2월부터 입주가 시작되었습니다. 주택형은 전용면적 59.94㎡형(59형) 단일 타입으로 공급되며, 개별가스난방을 사용합니다.
목차
창덕에버빌2차 국민임대

임대주택 신청자격은 입주자 모집공고일 기준, 무주택 세대 구성원으로 소득 및 자산 보유기준이 충족되면 신청이 가능합니다.
국민임대 주택은 임대기간 30년, 전용 60 ㎡이하, 보증금+임대료를 시중시세에 60~80%수준으로 공급하는 임대주택입니다.
자세한 부분은 홈페이지 모집공고 상세페이지에서 확인하시거나 전화 문의를 하시면 됩니다.
신청 시 공고 내용을 반드시 숙지하고 신청자격, 소득, 자산, 가점항목 등 사전에 본인이 직접 해당 서류를 작성 후 직접신청해야합니다.
계약은 공가 발생 시 당첨 순번으로 계약하게 됩니다. 예비입주자로 선정되어도 실제 주택 입주에는 많은 기간이 소요될 수 있습니다.
아파트 단지 정보
- 지역 전라남도
- 소재지 전라남도 광양시 광양읍 용강1길 12
- 건설세대수 262
- 준공일 2001년 9월
- 난방방식 개별난방
- 주차수 2,093
- 승강기 전체동 설치
단지교통망
🏠 주변 생활 인프라
행정·공공기관
광양시청, 광양읍주민센터, 광양경찰서, 광양소방서, 광양우체국
교통 시설
광양터미널 차량 약 5분 거리, 아파트 앞 시내버스 정류장, 국도 2·17호선 접근 용이
교육 시설
광양용강초등학교, 광양용강중학교, 광양중앙중·고등학교, 인근 유치원
의료·보건
광양보건소, 성가롤로병원, 인근 의원 및 약국 밀집지
시장 및 쇼핑
창덕할인마트, 세븐일레븐 등 편의점, 광양시장, 하나로마트, 중심상권 인접
기타 편의시설
무인택배함, 경로당, 어린이 놀이터, 주민커뮤니티 공간, 옥외주차장
자연·공원
근린공원, 하천변 산책로, 벚꽃길, 용강천 녹지대
공급정보

임대보증금 및 월 임대료는 입주자 모집공고일 기준이며, 보증금 최대 전환 시 변동될 수 있습니다.
국민임대주택는 분양전환이 되지 않는 아파트로써, 입주민에게 주택을 분양하지 않고 첫 계약 후 2년마다 재계약을 하는 방식으로 최대 30년까지 거주하게 하는 주택입니다.
단지 배치도
동호 배치도
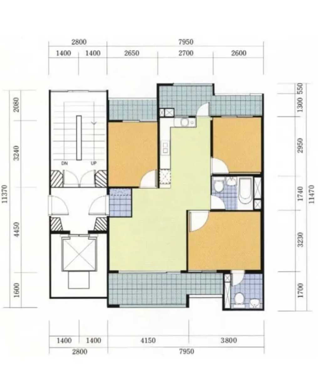
주택 평면도

국민임대 모집공고 보기
해당기관 공고페이지 바로보기
한국 토지주택공사LH, 지자체, 지방공사에서 무주택 저소득 서민들을 위해 저렴한 비용으로 주거안정을 누릴 수 있도록 소득 계층별 다양한 임대주택을 공급하고 있습니다.
임대주택을 잘 알아보시며, 적은 비용으로 주거안정과 더불어 행복한 삶을 영위할 수 있으니 알아보시기 바랍니다.
임대주택 주요 정보 알아보기
주택 관련 정보 더보기
- 주거급여 자격조건 신청방법 알아보기
- 임대주택 종류 총정리 (국민,공공,행복,장기,영구)
- 국민임대 주택 정보 총정리
- 영구임대 주택 정보 총정리
- 통합공공임대 주택 정보 총정리
- 행복주택 정보 총정리
- 장기전세 정보 총정리
- 공공임대 정보 총정리
- 청년안심주택 정보 총정리
청약점수 계산
임대문의
- 전국 대표전화 1600-1004
- 운영시간 평일 09:00~18:00 (점심시간 12:00~13:00)
- 토,일 공휴일 휴무
인터넷 신청방법
- 공인 인증서 준비
- LH/GH 청약시스템 접속
- 인터넷 신청
- 신청 완료
청약 신청 제출 서류
예비입주자 당첨 명단 조회
예비입주자 당첨 명단 조회는 LH청약 홈페이지와 ARS(1661-7700)을 통해 당첨 발표일로부터 30일간 확인할 수 있습니다.
청약 > 청약결과 확인 > 당첨/낙찰 결과조회 에서 로그인 후 확인이 가능합니다.
당첨 사실을 확인하지 못하여 계약 체결을 못한 경우 책임은 신청자 본인에게 있습니다.
예비입주자 대기현황 조회
임대주택에 경우 바로 당첨 후 입주 하는 것이 아니라, 예비입주자 순번을 부여받고 순차적으로 공실이 나면 입주를 하게 됩니다.
당첨되기전에, 내가 청약한 주택에 입주 대기자수를 확인해보고, 내가 언제쯤 입주할지를 가늠해볼 수 있습니다.
예비입주자 대기현황(마이홈)에서 해당 단지를 검색하면, 입주 대기자수를 확인이 가능합니다.
'전남' 카테고리의 다른 글
| 전라남도 광양시 광양와우 행복주택 모집공고 및 청약정보 (19,26,36형) (0) | 2025.06.26 |
|---|---|
| 전라남도 광양시 광양계원휴먼시아 국민임대 모집공고 및 청약정보 (34,39형) (0) | 2025.06.26 |
| 전라남도 광양시 창덕에버빌1차 국민임대 모집공고 및 청약 정보 (59형) (0) | 2025.06.26 |
| 전라남도 광양시 광양마동주공 국민임대 모집공고 및 청약 정보 (39,46형) (0) | 2025.06.26 |
| 전라남도 광양시 광양와우 국민임대 모집공고 및 청약 정보 (24,46형) (0) | 2025.06.26 |
