티스토리 뷰
서울 LH송파 도시형생활주택 공공임대 총정리에 대해서 알아보겠습니다.
서울 LH송파 도시형생활주택은 서울 송파구에 위치하고 있으며, 석촌역과 석촌호수 중간에 위치하여 접근성이 좋은 공공임대 주택입니다.
목차
서울 LH송파 도시형생활주택 공공임대 총정리

서울 LH송파 도시형생활주택 신청자격은 입주자 모집공고일 기준, 무주택 세대 구성원으로 소득 및 자산 보유기준이 충족되면 신청이 가능합니다.
이 글에서 부족한 자세한 부분은 서울지역 본부 ( 1600-1004 ) 에 전화로 문의하시기 바랍니다.
신청 시 공고 내용을 반드시 숙지하고 신청자격, 소득, 자산, 가점항목 등 사전에 본인이 직접 해당 서류를 작성 후 직접신청해야합니다.
계약은 공가 발생 시 당첨 순번으로 계약하게 됩니다. 예비입주자로 선정되어도 실제 주택 입주에는 많은 기간이 소요될 수 있습니다.
서울송파도시형생활주택 모집공고 보기
주택 단지 정보
- 지역 서울 송파구
- 소재지 서울특별시 송파구 백제고분로41길 27-1
- 공급구분 공공임대(10년)
- 건설세대수 22
- 준공일 2013년 8월
- 난방방식 개별가스난방
- 주차수 10(세대당 0.45대)
- 승강기 전체동 설치
공급정보

임대보증금 및 월 임대료는 입주자 모집공고일 기준이며, 보증금 최대 전환 시 변동될 수 있습니다.
공공임대 주택은 분양 전환이 되지 않는 주택으로 입주민에게 주택을 분양하지 않고 첫 계약 후 2년마다 재계약을 하는 방식으로 최대 10년까지 거주하게 하는 주택입니다.
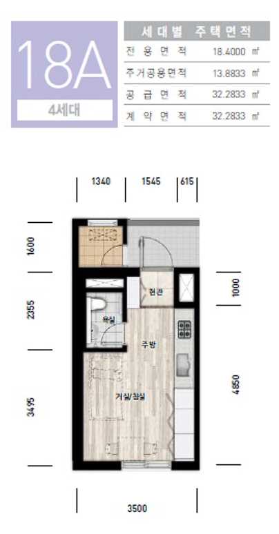
LH송파 도시형생활주택 평면도
18A

29A

한국 토지주택공사LH, 지자체, 지방공사에서 무주택 저소득 서민들을 위해 저렴한 비용으로 주거안정을 누릴 수 있도록 소득 계층별 다양한 임대주택을 공급하고 있습니다.
임대주택을 잘 알아보시며, 적은 비용으로 주거안정과 더불어 행복한 삶을 영위할 수 있으니 알아보시기 바랍니다.
임대주택 정보 알아보기
입주자 모집공고
- 한국토지주택공사 홈페이지에서 확인
- 청약센터 > 청약공고 > 임대주택 선택
임대문의
전국 대표전화 1600-1004
인터넷 신청방법
- 공인 인증서 준비
- LH 인터넷청약시스템 접속
- 인터넷 신청
- 신청 완료
예비입주자순위 조회
예비입주자 당첨 명단 조회는 공사 홈페이지와 ARS(1661-7700)을 통해 당첨 발표일로부터 30일간 확인할 수 있습니다. 당첨 사실을 확인하지 못하여 계약 체결을 못한 경우 책임은 신청자 본인에게 있습니다.
'서울' 카테고리의 다른 글
| BX201 공공임대주택 (15형, 31형) (0) | 2023.10.07 |
|---|---|
| 최강타워 공공임대주택 (17형, 18형, 39형, 42형) (0) | 2023.10.07 |
| 최강타워 민간임대주택 (17형, 18형, 39형, 42형) (0) | 2023.10.07 |
| 서울도봉 주공1단지 국민임대주택 총정리 (0) | 2023.09.12 |
| 서울등촌6 공공임대 총정리(37.5형, 37.67형, 49형) (0) | 2023.09.12 |
