티스토리 뷰

 

삼성동센트럴아이파크 행복주택 (49형) 모집공고 및 청약정보에 대해서 알아봅니다.

 

삼성동센트럴아이파크는 서울 강남구 청담역, 삼성중앙역 근처에 위치하고 있습니다.

 

목차

     

    삼성동센트럴아이파크 행복주택 (49형)

    아파트 신청자격은 입주자 모집공고일 기준, 무주택 세대 구성원으로 소득 및 자산 보유기준이 충족되면 신청이 가능합니다.

     

    행복주택은 임대기간 30년(입주계층에 따라 상이), 전용 60 ㎡이하, 보증금+임대료를 시중시세의 60~80% 수준으로 공급하는 임대주택입니다.

     

    자세한 부분은 SH 서울주택도시공사 홈페이지에서 자세한 모집공고를 확인하시거나 전화 문의(1600-3456) 하시면 됩니다.

     

    신청 시 공고 내용을 반드시 숙지하고 신청자격, 소득, 자산, 가점항목 등 사전에 본인이 직접 해당 서류를 작성 후 직접신청해야합니다.

     

    계약은 공가 발생 시 당첨 순번으로 계약하게 됩니다. 예비입주자로 선정되어도 실제 아파트 입주에는 많은 기간이 소요될 수 있습니다.

     

    아파트 단지 정보

    • 지역 서울 강남구
    • 소재지 서울 강남구 삼성로 629
    • 공급구분 행복주택
    • 건설세대수 57
    • 준공일 2018년 3월
    • 난방방식 지역난방
    • 주차수 498
    • 승강기 전체동 설치

     

    공급정보

    임대보증금 및 월 임대료는 입주자 모집공고일 기준이며, 보증금 최대 전환 시 변동될 수 있습니다.

     

    행복주택아파트는 분양전환이 되지 않는 아파트로써, 입주민에게 주택을 분양하지 않고 첫 계약 후 2년마다 재계약을 하는 방식으로 최대 6~20년까지 거주하게 하는 주택입니다.

    • 대학생, 청년 계층 : 6년
    • 신혼부부, 한부모가족 : 무자녀 6년, 자녀1명 이상 10년
    • 고령자, 주급급여수급자 : 20년

     

    선정방법

    • 1순위 : 해당 주택건설지역(서울특별시) 또는 연접지역역(의정부시·남양주시·구리시·하남시·성남시·과천시·안양시·광명시·부천시·인천광역시·김포시·고 양시·양주시)에 거주하거나 대학에 재학 중인 자
    • 2순위 : 해당 주택건설지역이 속한 주택공급에 관한 규칙 제4조 3항 각호의 지역으로서 1순위에 해당하지 않는 지역(수원시·평택시·동두천시·안 산시·오산시·시흥시·군포시·의왕시·용인시·파주시·이천시·안성시·화성시·광주시·포천시·여주시·연천군·가평군·양평군)에 거주하거나 대학에 재학 중인 자
    • 3순위 : 1순위 및 2순위에 해당하지 않는 자

    선정순서 : 순위 > 배점 > 추첨

     

     

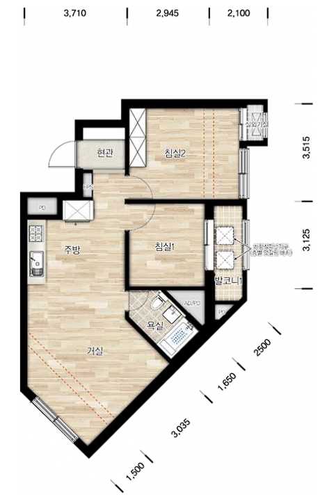
    주택 평면도

    49A형

     

    49B형

     

     

    행복주택 모집공고 보기

    2025년 2차 행복주택 입주자 모집공고.pdf
    0.77MB

     

    해당기관 공고페이지 바로보기

    해당기관 공고페이지로 바로보기

     

    한국 토지주택공사LH, 지자체, 지방공사에서 무주택 저소득 서민들을 위해 저렴한 비용으로 주거안정을 누릴 수 있도록 소득 계층별 다양한 임대주택을 공급하고 있습니다.

     

    임대주택을 잘 알아보시며, 적은 비용으로 주거안정과 더불어 행복한 삶을 영위할 수 있으니 알아보시기 바랍니다.

     

     

    임대주택 주요 정보 알아보기

     

    전국 임대주택 모집공고 보기

    서울 임대주택 모집공고 보기

    강남구 임대주택 모집공고 보기

     

    주택 관련 정보 더보기

    청약점수 계산

    청약가점 계산기 (주택 청약 점수 계산 방법)

    임대문의

    • 전국 대표전화 1600-1004
    • 운영시간 평일 09:00~18:00 (점심시간 12:00~13:00)
    • 토,일 공휴일 휴무

    인터넷 신청방법

    ▶GH 청약 신청 방법 총정리

    ▶LH 청약 신청 방법 총정리

     

    1. 공인 인증서 준비
    2. LH/GH 청약시스템 접속
    3. 인터넷 신청
    4. 신청 완료

    청약 신청 제출 서류

    LH 청약 신청 제출 서류 준비방법

     

    예비입주자 당첨 명단 조회

    예비입주자 당첨 명단 조회는 LH청약 홈페이지와 ARS(1661-7700)을 통해 당첨 발표일로부터 30일간 확인할 수 있습니다.

     

    청약 > 청약결과 확인 > 당첨/낙찰 결과조회 에서 로그인 후 확인이 가능합니다.

     

    당첨 사실을 확인하지 못하여 계약 체결을 못한 경우 책임은 신청자 본인에게 있습니다.

     

    예비입주자 대기현황 조회

    임대주택에 경우 바로 당첨 후 입주 하는 것이 아니라, 예비입주자 순번을 부여받고 순차적으로 공실이 나면 입주를 하게 됩니다.

     

    당첨되기전에, 내가 청약한 주택에 입주 대기자수를 확인해보고, 내가 언제쯤 입주할지를 가늠해볼 수 있습니다.

     

    예비입주자 대기현황(마이홈)에서 해당 단지를 검색하면, 입주 대기자수를 확인이 가능합니다.

     

    반응형
    댓글
    반응형