티스토리 뷰
서귀포대정 국민임대 주택 총정리 (39형, 46형, 51형)에 대해서 알아보겠습니다.
서귀포 대정 휴먼시아는 대정읍에 위치하고 있으며, 모슬포항이 가까운 거리에 있는 국민임대 아파트입니다.
목차
서귀포대정 국민임대 주택 총정리 (39형, 46형, 51형)

서귀포대정 국민임대 주택 신청자격은 입주자 모집공고일 기준, 무주택 세대 구성원으로 소득 및 자산 보유기준이 충족되면 신청이 가능합니다.
이 글에서 부족한 자세한 부분은 LH 제주지역 본부 ( 1600-1004) 에 전화로 문의하시기 바랍니다.
신청 시 공고 내용을 반드시 숙지하고 신청자격, 소득, 자산, 가점항목 등 사전에 본인이 직접 해당 서류를 작성 후 직접신청해야합니다.
계약은 공가 발생 시 당첨 순번으로 계약하게 됩니다. 예비입주자로 선정되어도 실제 아파트 입주에는 많은 기간이 소요될 수 있습니다.
서귀포 대정휴먼시아 국민임대 모집공고 보기
아파트 단지 정보
- 지역 제주 서귀포시
- 소재지 제주특별자치도 서귀포시 대정읍 하모중앙로 6
- 공급구분 국민임대
- 건설세대수 327
- 준공일 2010년 3월
- 난방방식 개별난방
- 주차수 274 (세대당 0.83대)
- 승강기 전체동 설치

공급정보

선정방법
전용 면적 50㎡미만 주택 해당
- 1순위 : 제주특별자치도에 거주하는 자
- 2순위 : 제 1순위 및 제 2순위에 해당되지 아니하는 자
선정순서 : 순위 > 배점 > 추첨
*청약저축 납입횟수는 통장 납입 횟수가 아닌 청약 순위 확인서로 보게 됩니다. 임대주택에 당첨이 되더라도 다른 분양주택 또는 임대주택을 청약하는데 재사용 가능하며, 당첨되었다고 해서 다른 아파트에 청약을 하지 못하는게 아니니 걱정할 필요 없습니다.
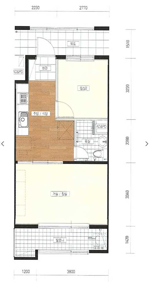
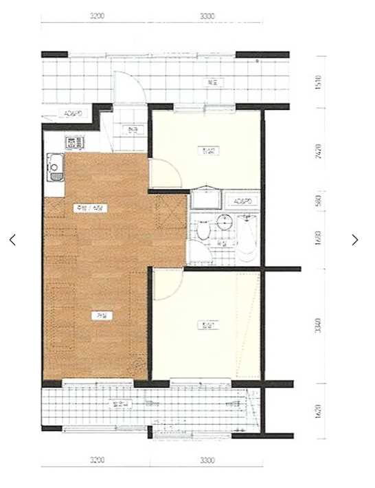
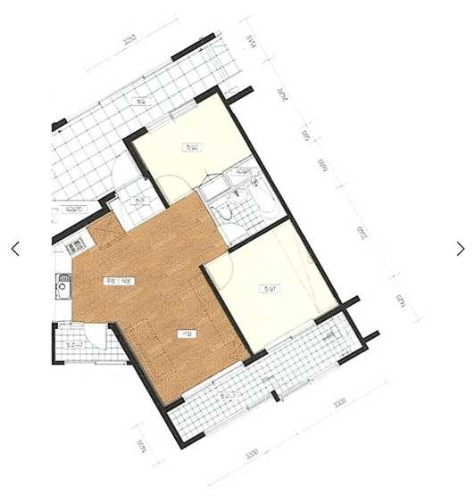
서귀포 대정휴먼시아 평면도
39T

39A

46T

46A

46AZ

51A

주택평면도는 마이홈(https://www.myhome.go.kr/)에서
공공주택찾기(기존 임대주택 찾기) > 지역 선택 > 국민임대 > 아파트 선택 후 검색하기 > 단지명 클릭 으로 확인이 가능합니다.
임대주택 정보 알아보기
입주자 모집공고
- 한국토지주택공사 홈페이지에서 확인
- 청약센터 > 청약공고 > 임대주택 선택
임대문의
전국 대표전화 1600-1004
인터넷 신청방법
- 공인 인증서 준비
- LH 인터넷청약시스템 접속
- 인터넷 신청
- 신청 완료
예비입주자순위 조회
예비입주자 당첨 명단 조회는 공사 홈페이지와 ARS(1661-7700)을 통해 당첨 발표일로부터 30일간 확인할 수 있습니다. 당첨 사실을 확인하지 못하여 계약 체결을 못한 경우 책임은 신청자 본인에게 있습니다.
'제주' 카테고리의 다른 글
| 서귀포동홍6 국민임대 주택 정보 (39형, 46형, 47형, 51형) (0) | 2023.09.15 |
|---|---|
| 북제주고성 국민임대 주택 총정리(39형, 51형) (0) | 2023.09.14 |
| 서귀포남원 국민임대 주택 총정리(26형, 36형, 46형) (0) | 2023.09.14 |
| 서귀포 고성진우파크빌 국민임대 총정리(49형) (0) | 2023.09.14 |
| 서귀포성산LH 국민임대 총정리(26형, 37형, 46형) (0) | 2023.09.10 |
