티스토리 뷰
브라이튼여의도 민간임대주택 (84형, 101형, 113형, 132형)에 대해서 알아봅니다.
브라이튼여의도 민간임대 주택은 서울 영등포구 근처에 위치하고 있습니다.
목차
브라이튼여의도 민간임대주택 (84형, 101형, 113형, 132형)

브라이튼여의도 민간임대아파트는 8년간 안정적인 거주기간과 임대료 부담 줄인 공공 민간임대주택입니다.
이 글에서 부족한 자세한 부분은 SH 서울주택도시공사 ( 1600-3456 ) 에 전화로 문의하시기 바랍니다.
아파트 단지 정보
- 지역 서울 영등포구
- 소재지 서울특별시 영등포구 여의도동 31
- 공급구분 민간임대
- 건설세대수 454
- 준공일 2023년 10월
- 난방방식
- 주차수 757 (세대당 1.66대)
- 승강기 전체동 설치
브라이튼여의도 민간임대주택 임차인 모집공고
공급정보

선정방법
브라이튼여의도 민간임대 평면도
84형

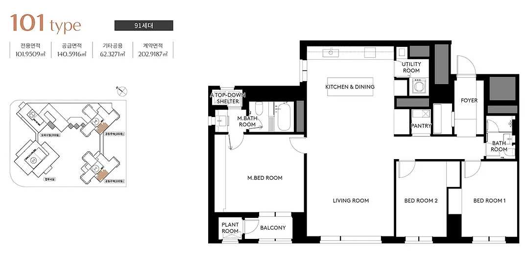
101형

113형

132형

한국 토지주택공사LH, 지자체, 지방공사에서 무주택 저소득 서민들을 위해 저렴한 비용으로 주거안정을 누릴 수 있도록 소득 계층별 다양한 임대주택을 공급하고 있습니다.
임대주택을 잘 알아보시며, 적은 비용으로 주거안정과 더불어 행복한 삶을 영위할 수 있으니 알아보시기 바랍니다.
임대주택 정보 알아보기
입주자 모집공고
- 한국토지주택공사 홈페이지에서 확인
- SH서울주택도시공사 홈페이지에서 확인
- 청약센터 > 청약공고 > 임대주택 선택
임대문의
전국 대표전화 1600-1004
인터넷 신청방법
- 공인 인증서 준비
- LH 인터넷청약시스템 접속
- 인터넷 신청
- 신청 완료
예비입주자순위 조회
예비입주자 당첨 명단 조회는 공사 홈페이지와 ARS(1661-7700)을 통해 당첨 발표일로부터 30일간 확인할 수 있습니다. 당첨 사실을 확인하지 못하여 계약 체결을 못한 경우 책임은 신청자 본인에게 있습니다.
반응형
'서울' 카테고리의 다른 글
| 신길역준타워 청년안심주택(16,19,31,32,34,42형) (0) | 2023.10.19 |
|---|---|
| 서울 관악구 신림동부 공공임대 모집공고(17형, 18형, 39형, 42형) (0) | 2023.10.19 |
| 신림주공1단지 공공임대주택 모집공고 (38형, 39형) (0) | 2023.10.18 |
| 봉천인헌 공공임대주택 (34형, 35형) (0) | 2023.10.17 |
| 봉천신봉 공공임대주택 (34형, 35형) (0) | 2023.10.17 |
댓글
반응형
